12840 Weston Road, King, QC L7B

$999,000

  • 0 Bedrooms
  • 0 Bathrooms
  • MLS: 29010819

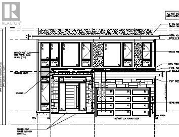
Description

Building Lot is permit ready. Drawings for4153 sq ft home are available upon request. Building permit has been paid $17,000.00. EXTRA DEEP LOT. Plans and room layout can be modified. WELL and SEPTIC are required. Flexible terms. BUILD YOUR DEAM HOME! All offers welcome ! (id:63285)

Property Details
DDF® Number N12472185
Property Type Vacant Land
Community Name Rural King
Building
Fireplace Present No
Land
Acreage No
Size Depth 224 Ft ,7 In
Size Frontage 48 Ft ,11 In
Size Irregular 48.93 X 224.62 Ft
Zoning Description Residential
Utilities
Cable Installed
Electricity Installed

Loading maps...

Loading street view...

This site is registered on wpml.org as a development site. Switch to a production site key to remove this banner.