Renderings of possible future development
Renderings of possible future development
1st floor plan of possible future development
1st floor plan of possible future development
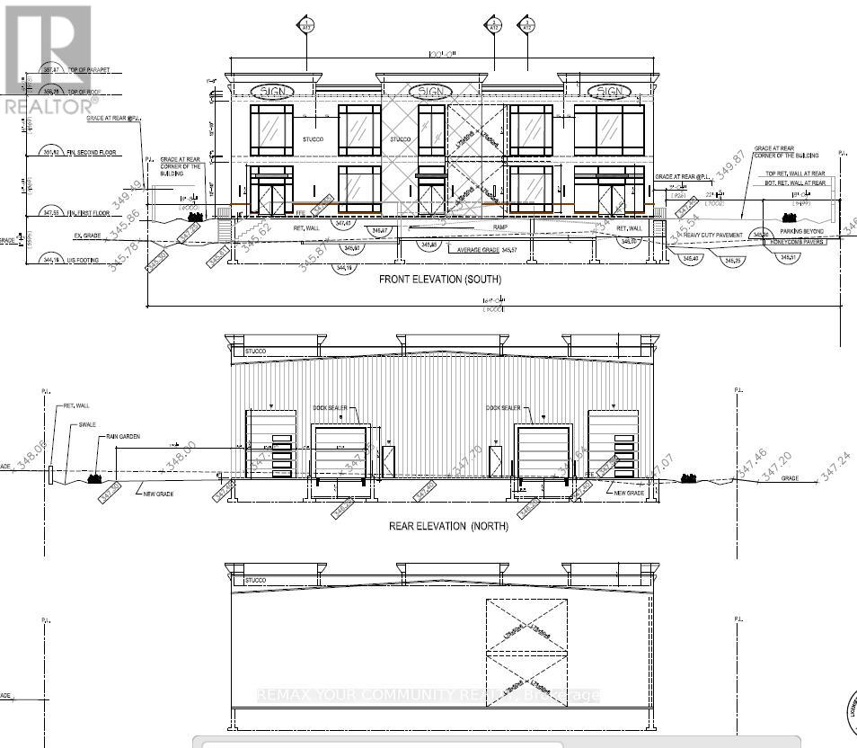
Elevations of possible future development
Elevations of possible future development

26 Anderson Boulevard, Uxbridge, QC L9P

$2,150,000

  • 0 Bedrooms
  • 0 Bathrooms
  • MLS: 29446686
2.00 ft2 Acreage

Description

2 Acre Industrial Lot with permitted outside storage in great industrial subdivision with many services at lot line. Flat and level Industrial Land In Prestigious and Mature Business Park. Easy drive to 404 & 407 Highways, and near Town of Stouffville and Town of Uxbridge. As a bonus, there is pre-permit ready to go site plan and architectural drawings available for a 23,980sqft building of which 1,480 is office and 22,499sqft of warehouse with over 26' clear height , two (12' x 12.5') truck level, two (12' x16') drive-in doors and 28 parking stalls. Note: By-Law Allows Outside Storage On This Lot Only If There Is A Building Associated on the lot. (id:63285)

Property Details
DDF® Number N12862434
Property Type Vacant Land
Community Name Rural Uxbridge
Features Irregular Lot Size
Building
Fireplace Present No
Size Interior 2 Ac
Land
Acreage Yes
Sewer Septic System
Size Depth 514 Ft ,8 In
Size Frontage 175 Ft ,8 In
Size Irregular 2.058
Size Total 89646.48 Sqft
Zoning Description (h) M1-35

Loading maps...

Loading street view...

This site is registered on wpml.org as a development site. Switch to a production site key to remove this banner.